新成屋

吉丞集美双匯

新北市三重區重安街

  • 1288~2488萬
  • 21.5~37.7
  • 52~66萬/坪

以上照片若為街景,為物件附近環境介紹,非刊登物件本身。

詳情資訊

  • 基本

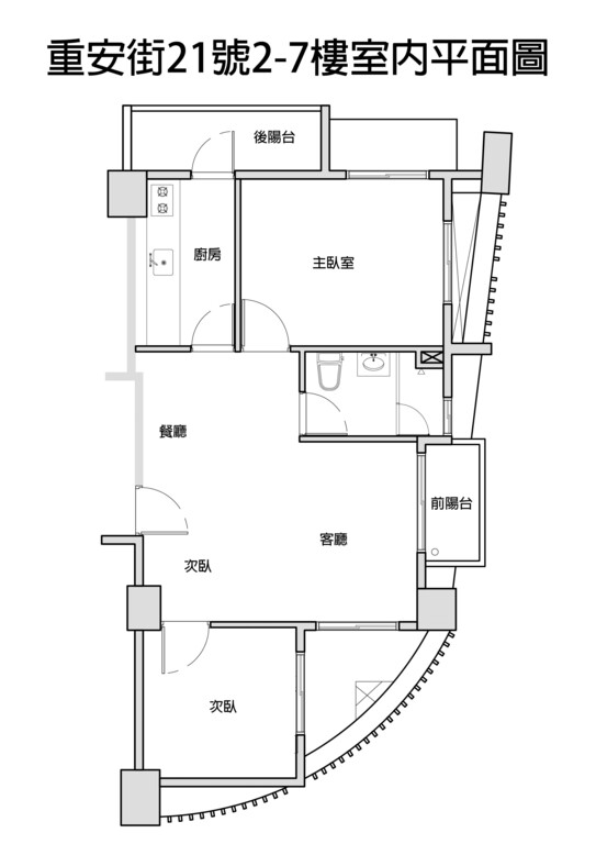
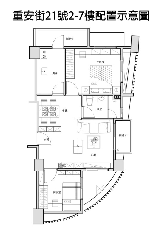
    基地位置 新北市三重區重安街21號
    接待地址 新北市三重區重安街21號
    公開銷售 2020年07月
    基地面積 146.07坪
    總戶數 28戶
    樓層 地上7層/地下2層
    格局 2房/3房
    屬性 華廈

    坪數

    坪數 21.5~37.7坪
    公設比 32%
  • 公共設施

    空中花園

  • 車位

    車位 平面式2個、機械式14個
    充電樁
  • 其他

    店面 共4間店面
    建設公司 吉丞建設股份有限公司
    朝向 座東南朝西北、座西南朝東北
  • 特色描述

    捷運350公尺
    出門便利、回家散步
    ==============

鄰近機能

  • 鄰近學校 集美國小三重高中
  • 鄰近市場 光明市場全聯
  • 鄰近公園 玫瑰公園過圳公園
  • 交通狀況 中和新蘆線-菜寮站桃園機場線-三重站
  • 其他生活機能 三重區公所三重戶政事務所社教館三重地方法院簡易庭

聯絡資訊

  • 建商自售
  • 吉丞建設股份有限公司
  • 行動電話
  • 0968696268
  • 市內電話
  • 02-29745775